For sale
East Smithfield, London, E1W
0 bedrooms
£1,150,000

Commercial: 020 7566 9440

Key features

Full description

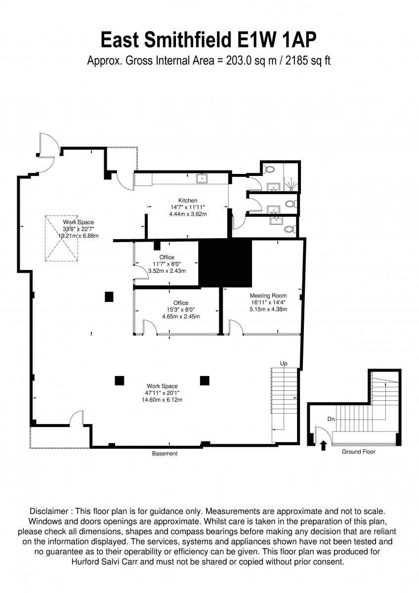
Media style office for sale in Tower Hill

Modern 2,185 sq ft lower ground floor office with direct street access at ground level, just moments from Tower Hill. This stylish contemporary office offers extensive open plan accommodation, industrial fittings, meeting rooms and excellent facilities.

The unit benefits from good amounts of natural light coming from the ground floor level close to the entrance, with a skylight providing light to the back of the unit. The interior has been tastefully fitted to a minimalistic media style with wooden floors, fully glazed meeting rooms, exposed concrete walls and contemporary kitchen/break out area and bathrooms.

East Smithfield runs between Tower Hill and Dock Street on the North side of St. Katherine's Docs. It is a City Fringe location which has seen lots of development over the last few years and will benefit from the arrival of the Chinese Embassy to the former Royal Mint building, just moments away from this location.

There are numerous transport links from nearby Tower Hill (District and Circle) and Aldgate East (H&C, District Lines) underground stations. Fenchurch Street rail is also within walking distance, and a number of bus lines run in the vicinity.

The amenities and restaurants of Tower Hill and St. Katherine's Docks are moments away from the premises.

AMENITIES *LED lighting
*Entry System
*Air Conditioning
*Fire Alarm
*Kitchen
*2 Toilets
*Storage room

EPC Available upon request

RATES Current rateable value according to the VOA website is £30,089 and rates payable around £15,000 per annum.